Stambeni nizovi povezani su kontinuiranim krovom, a prošupljeni zajedničkim parkingom. Struktura omeđuje poluprivatni park. Javni park van nizova komplementira poluprivatni park, a kulminira u zasebnim, privatnim vrtovima svake jedinice. Susreti i druženje u parku se događaju točkasto i raspršeno, a između nizova, na zajedničkim parkinzima ugušćeno. Tako su parking i okućnica postali prag, odnosno prijelaz, u kojem se suočava javno, polujavno i privatno, ili zajednica i pojedinac.
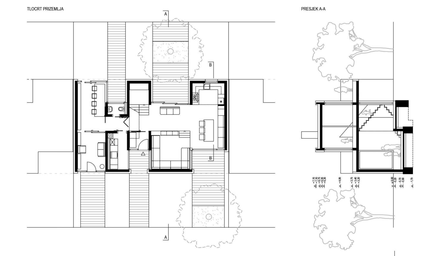
Definirajući prostorni okvir naselja, definirana je i stambena jedinica. Funkcionalne trake meandriraju oko osi zajedničkog krova, stvarajući manji natkriveni vanjski prostor, koji postaje mjesto za stol, mjesto za ulaz ili odmor. Ovisno o funkciji i potrebnoj intimi, trake se zatvaraju s jedne strane, a s druge nastavljaju na parcelu u obliku drvene palube.
- Projekt: STANOVANJE U NIZU
- Program: stanovanje
- Status: idejni projekt
- Lokacija: Zagreb
- Obuhvat: 266 m2
- Brutto: 145 m2
- Tlocrtno: 97 m2